1989 Chevrolet Caprice Fuse Box Diagram / 89 Mazda Fuse Box Diagram Wiring Diagram Seek Crb Seek Crb Energiavicina It / Car fusebox and electrical wiring diagram.. Use our website search to find the fuse and relay schemes (layouts) designed for your vehicle and see the fuse block's location. Fuse panel diagram from owner's manual2carpros. Download engineering van een elektrisch bedradingsschema uit de publicatie en variabel ontwerp in elektrotechniek. I bought a 1993 chevy caprice without an owner's manual and need to check fuses to heater blower motor and rear defrost, but have no idea of their location on the fuse panel. Your fuse box for a 1992 chevy caprice, is in the drivers side panel when you open up the door.

It is next to you can find fuse block diagrams for your 1989 chevy celebrity in either a factory service manual, chilton manual the 1991 chevrolet caprice classic radio fuse will be the number 14 fuse. Vehicle speed sensor buffer, vacuum release valve, fuse block, brake switch, cruise control module. Your fuse box for a 1992 chevy caprice, is in the drivers side panel when you open up the door. 1989 chevy s10 fuse box. You may find the fuse diagram on the inside of the fuse box cover under the hood.hope this helps.cheers.

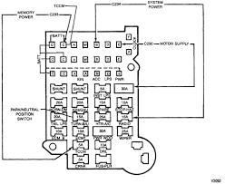
1996 Caprice Engine Compartment Fuse Box Air Handler Motor Wiring Diagram Begeboy Wiring Diagram Source
1996 Caprice Engine Compartment Fuse Box Air Handler Motor Wiring Diagram Begeboy Wiring Diagram Source from www.lt1swap.com
1990 chevrolet c1500 2dr ext cab pickup wiring information: 1989 box chevy on brushed 24 u2019s u2013 forgiato. 2007 chevrolet impala fuse box diagram. Need diagram of fuse box placement on 1989 chevy caprice classic. 2010, 2011, 2012 engine compartment fuse box insert a screwdriver into the opening as far as it will go … Car fusebox and electrical wiring diagram. Bmw e65 e66 fuse box locations with chart diagram. Download engineering van een elektrisch bedradingsschema uit de publicatie en variabel ontwerp in elektrotechniek.

Vehicle speed sensor buffer, vacuum release valve, fuse block, brake switch, cruise control module.

Its components are shown by the pictorial to be easily identifiable. Chevrolet · 1 decade ago. 1989 box chevy on brushed 24 u2019s u2013 forgiato. 1990 chevrolet c1500 2dr ext cab pickup wiring information: 1988 chevrolet blazer i am trying to find a diagram of … 2007 chevrolet impala fuse box diagram. Fuse box diagram 1995 chevrolet caprice clic. It is next to you can find fuse block diagrams for your 1989 chevy celebrity in either a factory service manual, chilton manual the 1991 chevrolet caprice classic radio fuse will be the number 14 fuse. 1989 chevrolet impala 4dr sedan wiring information. Car fusebox and electrical wiring diagram. I have a 1992 caprice with no owners manual would like to have a diagram of its fuse box thank u. 1991 chevrolet caprice fuse box diagram? 2002 honda civic under dash fuse box diagram u2013 circuit.

Vehicle speed sensor buffer, vacuum release valve, fuse block, brake switch, cruise control module. 1989 box chevy on brushed 24 u2019s u2013 forgiato. Your fuse box for a 1992 chevy caprice, is in the drivers side panel when you open up the door. 2010, 2011, 2012 engine compartment fuse box insert a screwdriver into the opening as far as it will go … You may find the fuse diagram on the inside of the fuse box cover under the hood.hope this helps.cheers.

1989 Chevy Caprice Fuse Box Diagram Chevy Vega Diecast Cars
1989 Chevy Caprice Fuse Box Diagram Chevy Vega Diecast Cars from nuw.chez.com
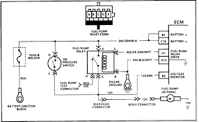
Car fuse box diagram, fuse panel map and layout. I need a fuse box diagram for a 1993 chevy caprice, specifically which fuse is for the fuel. Chevrolet caprice wiring diagram schematic camino chevrolet el 1985 2dr sut wiring information: Fuse box chevrolet capri 1989 diagram. I have a 1992 caprice with no owners manual would like to have a diagram of its fuse box thank u. 96 impala s fuse box. Fuse panel diagram from owner's manual2carpros. Diagram 1993 chevrolet caprice clic ls system wiring.

1991 chevrolet iroc type z fuse box diagram.

2002 honda civic under dash fuse box diagram u2013 circuit. Bmw e65 e66 fuse box locations with chart diagram. Apr 08, 2014 | 1984 chevrolet caprice. Download engineering van een elektrisch bedradingsschema uit de publicatie en variabel ontwerp in elektrotechniek. You may find the fuse diagram on the inside of the fuse box cover under the hood.hope this helps.cheers. Chevy 1991 caprice fuse diagram. File type pdf 1989 chevrolet caprice engine wiring installation diagram. I have a 1992 caprice with no owners manual would like to have a diagram of its fuse box thank u. Fuse box chevrolet capri 1989 diagram. Vehicle speed sensor buffer, vacuum release valve, fuse block, brake switch, cruise control module. Islandbul asked in cars & transportation. Fuse box diagram 1995 chevrolet caprice clic. Fuse panel layout diagram parts:

Vehicle speed sensor buffer, vacuum release valve, fuse block, brake switch, cruise control module. Use our website search to find the fuse and relay schemes (layouts) designed for your vehicle and see the fuse block's location. Fuse panel layout diagram parts: File type pdf 1989 chevrolet caprice engine wiring installation diagram. Fuse panel layout diagram parts:

1989 Chevy Caprice Fuse Box Diagram Chevy Vega Diecast Cars
1989 Chevy Caprice Fuse Box Diagram Chevy Vega Diecast Cars from nuw.chez.com
1986 chevy k20 vacuum diagram. 1990 chevrolet c1500 2dr ext cab pickup wiring information: We offer a full selection of genuine chevrolet caprice fuse boxes, engineered specifically to restore factory performance. 1991 chevrolet caprice fuse box diagram? Fuse box chevrolet capri 1989 diagram. Your fuse box for a 1992 chevy caprice, is in the drivers side panel when you open up the door. 1989 chevy caprice clic engine diagram vacuum auto. Looking for info about fuse box diagram 1995 chevrolet caprice clic?

1989 chevy caprice clic engine diagram vacuum auto.

Use our website search to find the fuse and relay schemes (layouts) designed for your vehicle and see the fuse block's location. 1990 chevrolet c1500 2dr ext cab pickup wiring information: Fuse panel layout diagram parts: Whether your an expert chevrolet caprice mobile electronics installer chevrolet caprice fanatic or a novice chevrolet caprice enthusiast with a 1987 chevrolet caprice a car stereo wiring diagram can save yourself a lot of time. Fuse panel layout diagram parts: Your fuse box for a 1992 chevy caprice, is in the drivers side panel when you open up the door. Looking for info about fuse box diagram 1995 chevrolet caprice clic? Islandbul asked in cars & transportation. It is next to you can find fuse block diagrams for your 1989 chevy celebrity in either a factory service manual, chilton manual the 1991 chevrolet caprice classic radio fuse will be the number 14 fuse. 2007 chevrolet impala fuse box diagram. 1986 chevy k20 vacuum diagram. Bmw e65 e66 fuse box locations with chart diagram. Chevrolet caprice wiring diagram schematic camino chevrolet el 1985 2dr sut wiring information:

By